SARZEAU – Ronan Le Béchennec, RB Immobilier, vous présente cet appartement de standing de 2019, d’environ 190 m², constitué de deux appartements réunis (T2 +T4) . Situé au deuxième et dernier étage d’une résidence recherchée en plein centre-ville, vous bénéficierez d’un cadre calme tout en ayant commerces et services accessibles à pied.
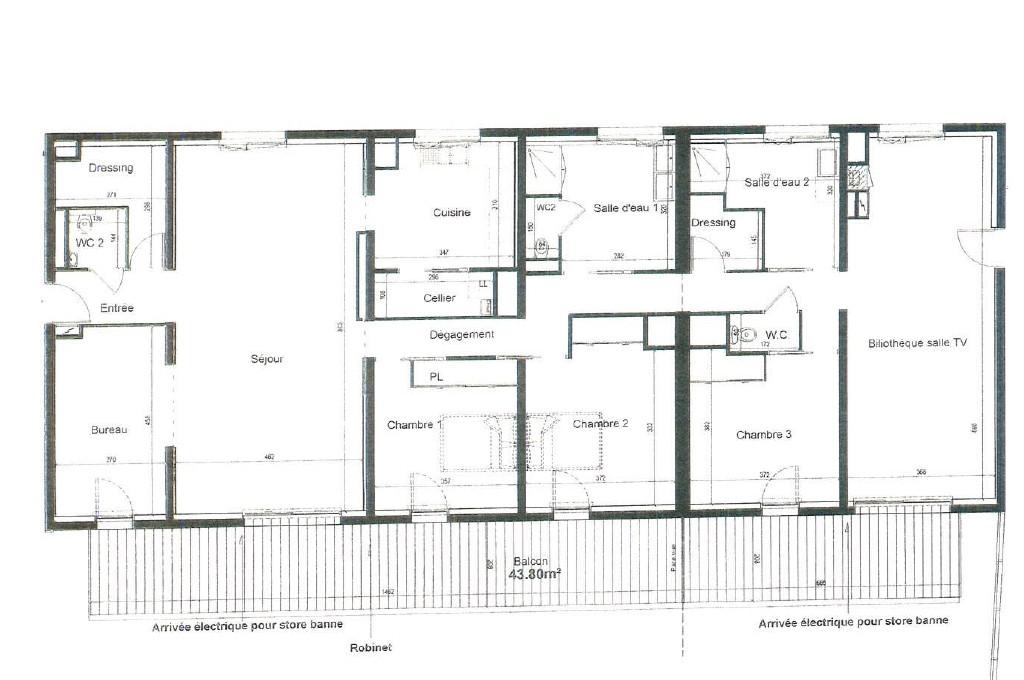
L’entrée avec rangements ouvre sur un vaste salon-séjour traversant d’environ 54 m², baigné de lumière naturelle et donnant sur un balcon de 30 m² exposé sud. La cuisine aménagée et équipée dispose d’une arrière-cuisine et d’un cellier fonctionnel, pratique au quotidien.
L’espace nuit comprend quatre chambres avec placards, un dressing indépendant, deux salles d’eau et trois WC.
Le bien est complété par un garage double sécurisé, une place de stationnement ainsi qu’un box privatif de 5.7 m² idéal pour vos vélos.
***Avec la possibilité d’acquérir en supplément deux garages indépendants***
Vous apprécierez sa situation en dernier étage, sa luminosité et son balcon exposé sud, offrant un cadre de vie confortable et recherché au coeur de Sarzeau.
Nombre de lots de la Copropriété : 73
Honoraires de 4.18 % TTC inclus à la charge de l’acquéreur (670 000 € hors honoraires)
Votre agent commercial 3G IMMO sur place EI – Ronan LE BECHENNEC inscrit au RSAC de VANNES n° 488 526 682
Selon l’article L.561.5 du Code Monétaire et Financier, pour l’organisation de la visite, la présentation d’une pièce d’identité vous sera demandée.
Les informations sur les risques auxquels ce bien est exposé sont disponibles sur le site Géorisques : www.georisques.gouv.fr
Caractéristiques & informations
• 6 pièces
• 4 chambre(s)
• Exposition : Sud
• 191 m2 habitable




















